鸭脖(中国)Yabo·官方网站 - 登录入口十几年前在四川上大学还莫得那么彰着-鸭脖(中国)Yabo·官方网站 - 登录入口
哈喽鸭脖(中国)Yabo·官方网站 - 登录入口,全球晚上好,今天这套案例衷心要好面子看了,今天这套大平层一鸣惊人,装修其实看着温馨且高等,四川佳偶晒出239平米自家大平层装修,一家五口其乐融融,真的是协调幸福的一家,这套新址装修我以为衷心有不少值得保举的场地啊!迅速点赞保藏起来。

餐厅空间
屋子大确切装好愈加容易出扬弃,屋子找确当地孤独联想师联想,半包口头,性价比还蛮高的,我个东说念主以为衷心可以哈!好意思女对她家的新址装修甚是鼎沸,甚至于只透风了三个月就搬进新家里居住了,邻居音书通畅,一搬进来,就来参不雅装修了,关于好意思女家的装修,邻居们拍案叫绝,说说念,再买房,就要这样装!

客厅区域
屋子是在四川省成都市,极乐全国,四川省的省会,这些年发展太快了,十几年前在四川上大学还莫得那么彰着,当今四川的第一和其他地级市差太多了,这套屋子设立面积239平米,套内面积190平米,装修颜色温馨沉着,确切有家的滋味!

客厅区域
好意思女东说念主生第二套屋子,和一家东说念主一皆,住上了改善住所!亦然她的dreamhouse!

客餐厅空间
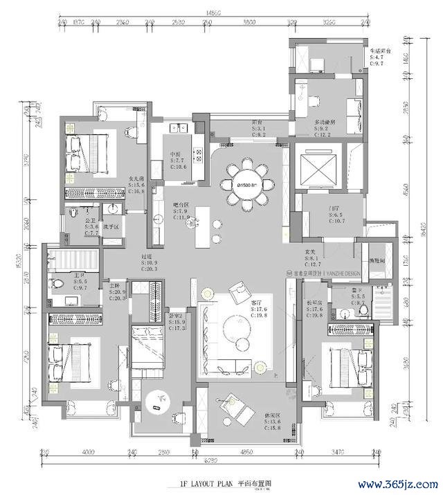
平面布局
这是家里举座的平面布局,蓄意合理,户型南北通透,五室两厅三卫户型。平面蓄意是一个家庭装修的灵魂。

平面吩咐图
客厅空间
客厅空间的装修衷心耐看,莫得富裕造型,配色大略沉着,便是漂亮。

客厅区域

客厅区域
客厅空间电视布景墙造型比拟浮浅,木饰面与石膏板的竣工麇集,下面一滑深色地台。

客厅区域

客厅空间
沙发布景墙造型是灰色硬包作念造型,沙发灰色皮质沙发,搞好符合这个空间,灰色玻璃茶几加灰色地毯。

客厅空间

客厅区域

客厅空间
客厅空间禁受无主灯联想,射灯加格栅灯和四周悬浮灯带,出来扬弃特别出彩。色温选3500k,真的蛮温馨的。

客厅区域

客厅

客厅空间
餐厅空间
餐厅区域的联想就比拟实用,亦然挺有思法的。

餐厅空间

餐厅区域

餐厅空间
餐厅区域聘用岩板餐桌,圆桌更适用与这个餐厅,上方吊灯也很个性。

餐厅区域
餐厅掌握联想吧台,这个吧台也很实用,平素吃个早餐,其实比拟便捷。

餐厅空间
餐厅侧边还是要蓄意储物空间,是以联想了餐边柜,到顶,储物空间更大!

餐厅区域

餐厅空间

客餐厅
厨房区域
厨房空间我嗅觉联想的还是挺可以的,天然面积有且只好10平米。

厨房区域
橱柜U型边幅,柜门深灰色平板门,比拟耐脏!台面高下台联想,使用便捷!雪柜联想在掌握!

厨房空间

卧室空间
卧室区域的装修我个东说念主以为衷心面子,比拟沉着,住着真的好沉着。

卧室
卧室大地通铺暖色木地板,床头布景墙咱们来望望具体怎样作念的,木饰面作念半高墙,上半部分刷的灰色乳胶漆。主卧亦然无主灯联想,飘窗保留,定制飘窗垫,窗帘一层纱一层帘。

卧室
好了,今天这套屋子装修到这里就要说重逢了,感谢赞助,存眷@好意思女说装修,咱们下期重逢吧!

卧室

儿童房
